In a small street between Las Ramblas and the old town of Palma, Barnes Mallorca offers you this beautiful, fully renovated apartment, located on the ground floor of a similarly restored building.
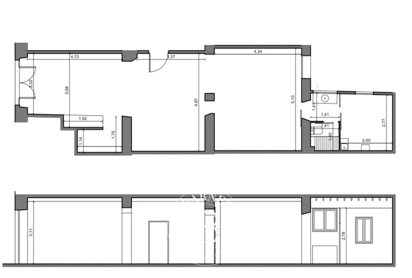
Upon entering, you will immediately be impressed by the living space, consisting of a linear, fully equipped kitchen leading into a spacious dining area, which is connected to a very cozy living room.
A beautiful, custom-made arched double glass door made of wood leads you to the large master bedroom, which overlooks the building’s inner courtyard.
The bedroom is connected to a bathroom with a toilet and a study, which could be converted into a child’s room.
The apartment boasts rare charm, enhanced by the refined, tastefully designed decor, with the furniture sold along with the property.
Everything here exudes quality, elegance, and authenticity, thanks to the used and preserved materials, such as the solid wood floors edged with fine brass strips, the exposed beams, the installation of individual gas heating for maximum comfort, and a lovely built-in bookcase.
Its privileged location, just a few steps from all restaurants, bars, shops, and stores, allows you to enjoy life in the heart of beautiful Palma, while still having absolute peace.
Access to the train station, bus stops, or other main roads to travel to all parts of the island is quick and easy.
This cozy home is the perfect place for year-round living or as a second residence.






Türkiye'deki ve uluslararası lüks emlak haberlerinden haberdar olmak için bültenimize abone olun.