Barnes Türkiye
Madrid

Daire Madrid

  • 102 m²
  • 2
  • 2
1 460 078 $
İletişim
Referans : 86514941
Bu ilanı paylaş

Madrid, 2 yatak odaları - 102 m² satılık Daire

Özellikler

  • FİYAT
    1 460 078 $
  • Tip
    Daire
  • Yerellik
    Madrid
  • Alan
    102 m²
  • Yatak odaları
    2
  • Zemin
    6
  • Kat sayısı
    6
  • Eşyalı
    EVET

Mülkün tanımı

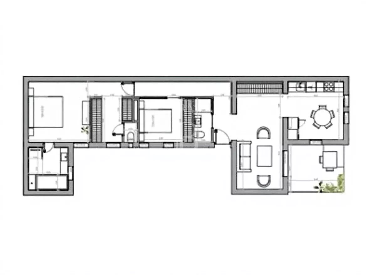
Barnes Madrid presents this beautiful penthouse on the sixth floor of a classic building on one of the quietest streets in the Trafalgar neighborhood, right next to Almagro.

The property, of more than 100 m², features two double bedrooms and two full bathrooms, as well as a social area and a kitchen with direct access to the terrace.

Upon entering the property, you are greeted by a bright space that combines the kitchen and living room. It is the perfect place to enjoy pleasant afternoons and evenings with friends and family, with direct access to the 15 m² terrace, ideal for meals, breakfasts, or simply enjoying sunny days in the capital.

Entering the night area, we find a first bathroom that serves both guests and the first bedroom, providing greater comfort. Continuing down the hallway, and occupying an entire wing of the home, is the main bedroom. Spacious and with a large dressing area, this room is an oasis of tranquility for its future owner. On the opposite side of the room is the en-suite bathroom.

In short, it is the perfect apartment to be a first home, to enjoy not only with family but also with friends thanks to the outdoor space. A great opportunity in a classic building from the 1940s.

Don’t miss the opportunity to visit this fantastic property with Barnes Madrid, specialists in luxury real estate for more than two decades and present in over twenty countries.


Olanaklar

Living/dining/kitchen area
Living/dining/kitchen area
Duşlu banyo
Duşlu banyo
Teras
Teras
Yatak odalari
Yatak odalari
Asansör
Asansör
Eşyalı
Eşyalı
Mağazalar
Mağazalar
Daire Madrid - picture2 1
Daire Madrid - picture2 2
Daire Madrid - picture2 3
Daire Madrid - picture2 4
Daire Madrid - picture2 5

Mülkün konumu

Barnes Türkiye

Levent, Krizantem Sk. No:64

Beşiktaş/İstanbul, 34330

+90 506 581 22 42
Detaylı bilgi için bize ulaşın

Toplanan bilgiler, Barnes Türkiye'ın talebinizi işleme koyması için gereklidir. Sizinle ilgili kişisel bilgilere her zaman erişme, bunları düzeltme ve silme hakkına sahipsiniz.

This site is protected by reCAPTCHA and the Google Privacy Policy and Terms of Service apply.

Bölgedeki mülkler

Daire MadridDaire MadridDaire Madrid

Madrid, Trafalgar
  • 2 yatak odaları
  • 100 m²
  • 2
1 519 673 $ - Referans 86511299

Daire MadridDaire MadridDaire Madrid
münhasırlık
VIDEO

Madrid, Trafalgar
  • 3 yatak odaları
  • 119 m²
  • 3
1 698 458 $ - Referans 86476299

Daire MadridDaire MadridDaire Madrid
Tarafından satıldı Barnes Türkiye

Madrid, Chamberí
  • 3 yatak odaları
  • 119 m²
  • 3
Satıldı - Referans 85306142

Daire MadridDaire MadridDaire Madrid
Tarafından satıldı Barnes Türkiye

Madrid, Trafalgar
  • 3 yatak odaları
  • 147 m²
  • 3
Satıldı - Referans 86382180

Daire MadridDaire MadridDaire Madrid
VIDEO

Madrid, Trafalgar
  • 2 yatak odaları
  • 99 m²
  • 2
1 334 928 $ - Referans 85792243

Daire MadridDaire MadridDaire Madrid
VIDEO

Madrid, Trafalgar
  • 3 yatak odaları
  • 93 m²
  • 2
774 735 $ - Referans 86484155

BARNES Haber Bülteni

Türkiye'deki ve uluslararası lüks emlak haberlerinden haberdar olmak için bültenimize abone olun.