Barnes Türkiye
Monaco

Daire Monaco

  • 106 m²
  • 1
  • 2
6 066 320 $
İletişim
Referans : ITB-V1528
Bu ilanı paylaş

Monaco, 2 yatak odaları - 106 m² satılık Daire

Özellikler

  • FİYAT
    6 066 320 $
  • Tip
    Daire
  • Yerellik
    Monaco
  • Alan
    106 m²
  • Odalar
    4
  • Yatak odaları
    2

Mülkün tanımı

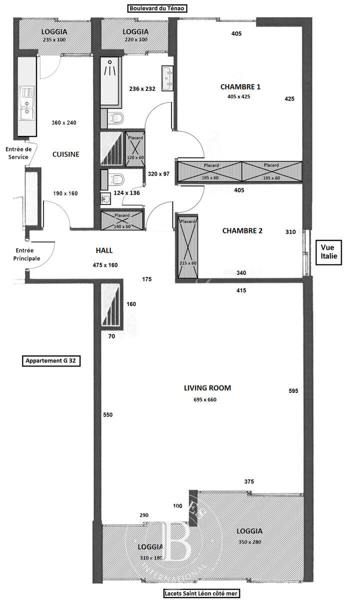
Located in the high-standard, secure "Château Périgord II" residence with 24/7 concierge in the La Rousse residential area. Close to numerous amenities, including local shops, and with quick access to the Larvotto beaches.

This spacious 3/4-room corner apartment has a triple aspect. The flat is in perfect condition, and some rooms were renovated a few years ago. It comprises an entrance hall, a spacious double living/dining room opening onto an enclosed loggia, a kitchen with separate entrance and opening onto an enclosed loggia, two bedrooms with built-in storage, a full shower room opening onto an enclosed loggia and a guest toilet.

Currently configured as a 2-bedroom flat, it could be converted into a 3-bedroom apartment with 3 separate bedrooms. The flat is air-conditioned.

A large cellar completes this property. Additional parking is available in the residence for €450,000.

Daire Monaco - picture2 1
Daire Monaco - picture2 2
Daire Monaco - picture2 3
Daire Monaco - picture2 4
Daire Monaco - picture2 5

Mülkün konumu

Barnes Türkiye

Levent, Krizantem Sk. No:64

Beşiktaş/İstanbul, 34330

+90 506 581 22 42
Detaylı bilgi için bize ulaşın

Toplanan bilgiler, Barnes Türkiye'ın talebinizi işleme koyması için gereklidir. Sizinle ilgili kişisel bilgilere her zaman erişme, bunları düzeltme ve silme hakkına sahipsiniz.

This site is protected by reCAPTCHA and the Google Privacy Policy and Terms of Service apply.

Bölgedeki mülkler

Daire MonacoDaire MonacoDaire Monaco

Monaco
  • 105 m²
5 950 010 $ - Referans 89966

Daire MonacoDaire MonacoDaire Monaco
VIDEO

Monaco, Monte-Carlo
  • 2 yatak odaları
  • 91 m²
  • 2
8 749 500 $ - Referans ITB-V1514

Ev MonacoEv MonacoEv Monaco

Monaco
  • 2 yatak odaları
  • 110 m²
  • 2
8 982 820 $ - Referans 90966

Daire MonacoDaire MonacoDaire Monaco

Monaco
  • 4 yatak odaları
  • 110 m²
  • 3
6 416 300 $ - Referans 90977

Daire MonacoDaire MonacoDaire Monaco

Monaco
  • 2 yatak odaları
  • 2
6 357 970 $ - Referans 76912

Daire MonacoDaire MonacoDaire Monaco

Monaco, La Rousse - Saint Roman
  • 1 Yatak odası
  • 53 m²
  • 1
3 243 148 $ - Referans ITB-V1597

BARNES Haber Bülteni

Türkiye'deki ve uluslararası lüks emlak haberlerinden haberdar olmak için bültenimize abone olun.