Barnes Türkiye
Monaco - münhasırlık

Daire Monaco

  • 340 m²
  • 3
  • 3
Talep üzerine fiyat
İletişim
Referans : ITB-V1122
Bu ilanı paylaş

Monaco, 3 yatak odaları - 340 m² satılık Daire

Özellikler

  • FİYAT
    Talep üzerine fiyat
  • Tip
    Daire
  • Yerellik
    Monaco
  • Alan
    340 m²
  • Odalar
    5
  • Yatak odaları
    3
  • Banyolar
    3

Mülkün tanımı

Located in the Fontvieille district, in one of Monaco's most luxurious residences, offering standard services: 24/7 concierge, swimming pool, fitness room. Close to all amenities (shops, schools, restaurants) and just a stone's throw from beaches and wooded parks.

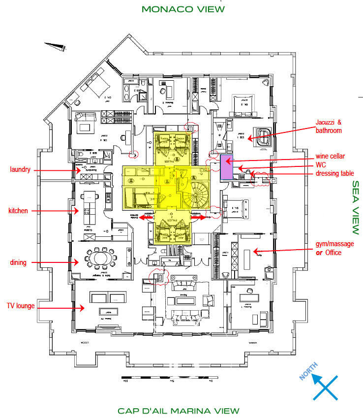
This exceptional flat is a true gem in the Principality, as it is located on one of the top floors of the most prestigious building in the "Seaside Plaza" residence, unoverlooked, on the seafront and with no noise pollution due to its proximity to the heliport. This sumptuous corner flat offers exceptional living space in the Principality and benefits from morning-to-evening sunshine thanks to its triple exposure. The property has its own private landing accessible via a secure lift. It comprises an entrance hall leading to a triple living room opening onto a sea-view, west-facing terrace surrounding the flat. A dining room, a large kitchen with adjoining tea room and a pantry/laundry room. A suite with bedroom, study, dressing room and very large bathroom with shower and jacuzzi. The study could be used as an additional bedroom. Two bedrooms with fitted wardrobes and bathroom/shower, a storage room and a guest WC with cloakroom.

The layout of the apartment can be changed, which would offer five bedrooms if necessary. Also, part of the terraces can be closed.

All the rooms are spacious and open onto a superb circular terrace. The bedrooms offer views of the Roseraie and the Palais Princier, while the living rooms offer views of the sea and the Port of Cap d'Ail.

2 parking spaces complete this property.

Daire Monaco - picture2 1
Daire Monaco - picture2 2
Daire Monaco - picture2 3
Daire Monaco - picture2 4
Daire Monaco - picture2 5

Mülkün konumu

Barnes Türkiye

Levent, Krizantem Sk. No:64

Beşiktaş/İstanbul, 34330

+90 506 581 22 42
Detaylı bilgi için bize ulaşın

Toplanan bilgiler, Barnes Türkiye'ın talebinizi işleme koyması için gereklidir. Sizinle ilgili kişisel bilgilere her zaman erişme, bunları düzeltme ve silme hakkına sahipsiniz.

This site is protected by reCAPTCHA and the Google Privacy Policy and Terms of Service apply.

Bölgedeki mülkler

Daire MonacoDaire MonacoDaire Monaco

Monaco, Fontvieille
  • 5 yatak odaları
  • 330 m²
Talep üzerine fiyat - Referans ITB-V1641-2C

Daire Monaco

Monaco, Fontvieille
  • 1 Yatak odası
  • 45 m²
  • 2
4 479 744 $ - Referans ITB-V1480-1

Daire MonacoDaire MonacoDaire Monaco

Monaco
  • 1 Yatak odası
  • 1
4 841 390 $ - Referans 88656

Daire MonacoDaire Monaco

Monaco, Fontvieille
  • 4 yatak odaları
  • 500 m²
  • 3
Talep üzerine fiyat - Referans ITB-V1419-2C

Daire MonacoDaire MonacoDaire Monaco

Monaco, Fontvieille
  • 2 yatak odaları
  • 108 m²
  • 2
9 916 100 $ - Referans ITB-V1585

Daire MonacoDaire MonacoDaire Monaco
VIDEO

Monaco, Fontvieille
  • 3 yatak odaları
  • 164 m²
  • 3
18 082 300 $ - Referans ITB-V1616

BARNES Haber Bülteni

Türkiye'deki ve uluslararası lüks emlak haberlerinden haberdar olmak için bültenimize abone olun.