Barnes Türkiye
Paris 6ème - münhasırlık

Daire Paris 6ème

  • 67 m²
  • 1
  • 2
Satıldı
İletişim
Referans : 3161233
Kat Mülkiyeti : EVET (87 arsalar)
Acente ücretleri satıcı tarafından ödenir.
Ücretleri görüntüle
Bu ilanı paylaş

Paris 6ème, 2 yatak odaları - 67 m² satılık Daire

Özellikler

  • FİYAT
    Satıldı
  • Tip
    Daire
  • Yerellik
    Paris 6ème
  • Alan
    67 m²
  • Odalar
    3
  • Yatak odaları
    2
  • Kat sayısı
    6
  • DPE
    213 (D)
  • GES
    9 (B)

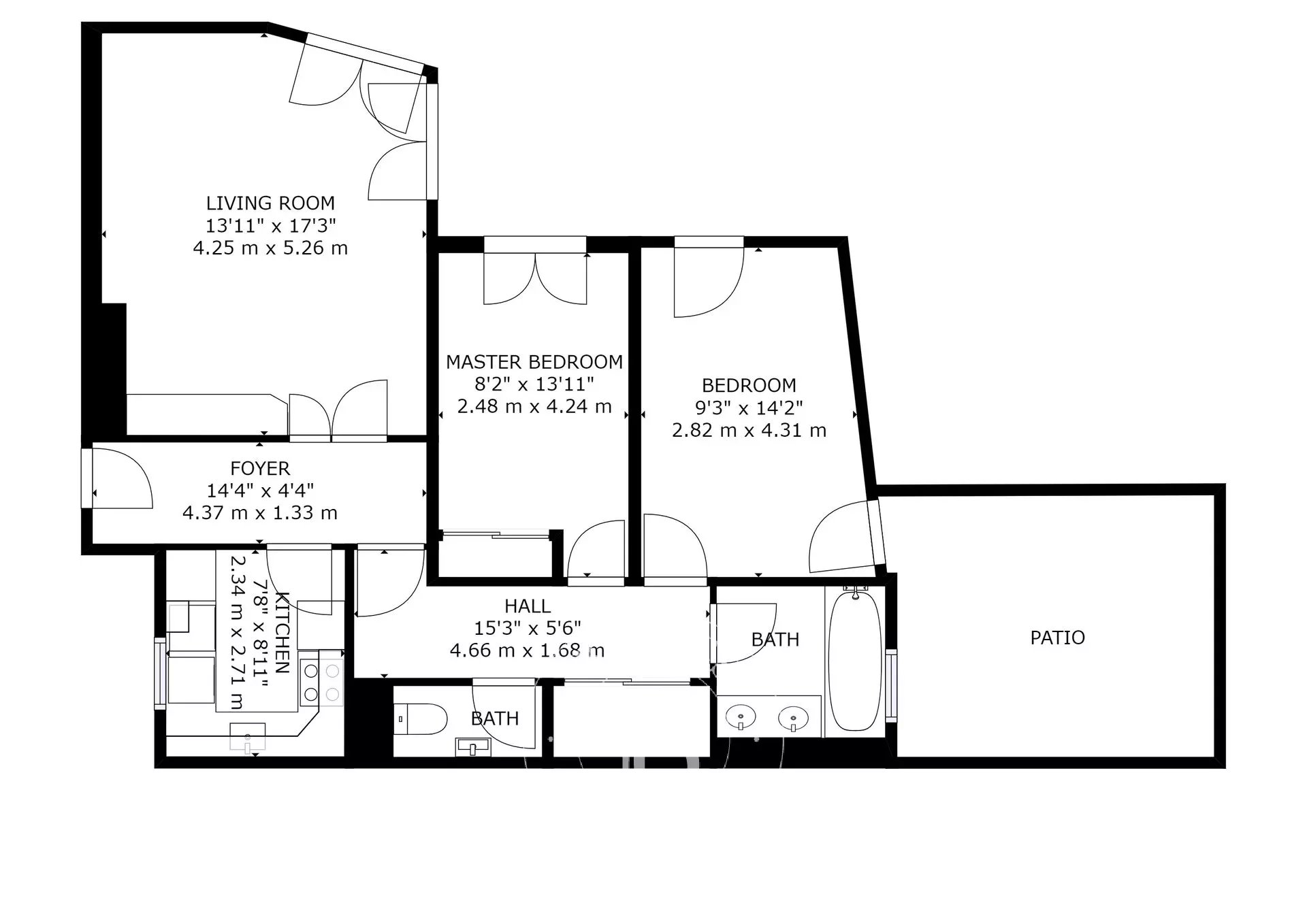
Mülkün tanımı

This 67.05 sqm fixer upper apartment featuring two private terraces of 20 and 7 sqm is at garden level, in a beautiful secure building with a concierge. Enjoying an optimized layout, it comprises an entrance hall, a living room, a separate kitchen, two bedrooms, a walk-in closet, a bathroom and a separate toilet. Beautiful view of the garden. Quiet. Sold with a cellar.
Parking space at 50,000 Euros (in addition to the price)
Suitable for a self-employed Professional. Agency fees payable by vendor - Nombre de lots dans la copropriété: 87 - Montant moyen de la quote-part de charges courantes 1,892 €/yearly


Olanaklar

Giriş
Giriş
Koridor
Koridor
Küvetli banyo
Küvetli banyo
Mutfak
Mutfak
Salon
Salon
Teras
Teras
WC
WC
Yatak odalari
Yatak odalari
Asansör
Asansör
Celik kapı
Celik kapı
Dijtal Kod
Dijtal Kod
Elektrikli panjur
Elektrikli panjur
Engelli erişimi
Engelli erişimi
Görüntülü Diafon
Görüntülü Diafon
Interkom
Interkom
Kapici
Kapici
Daire Paris 6ème - picture2 1
Daire Paris 6ème - picture2 2
Daire Paris 6ème - picture2 3
Daire Paris 6ème - picture2 4
Daire Paris 6ème - picture2 5

Mülkün konumu

Barnes Türkiye

Levent, Krizantem Sk. No:64

Beşiktaş/İstanbul, 34330

+90 506 581 22 42
Detaylı bilgi için bize ulaşın

Toplanan bilgiler, Barnes Türkiye'ın talebinizi işleme koyması için gereklidir. Sizinle ilgili kişisel bilgilere her zaman erişme, bunları düzeltme ve silme hakkına sahipsiniz.

This site is protected by reCAPTCHA and the Google Privacy Policy and Terms of Service apply.

Bölgedeki mülkler

Daire Paris 6èmeDaire Paris 6èmeDaire Paris 6ème
Tarafından satıldı Barnes Türkiye
VIRTUAL

Paris 6ème
  • 2 yatak odaları
  • 85 m²
  • 1
Satıldı - Referans 4062745

Daire Paris 6èmeDaire Paris 6èmeDaire Paris 6ème
Tarafından satıldı Barnes Türkiye

Paris 6ème, Notre-Dame-des-Champs
  • 1 Yatak odası
  • 55 m²
Satıldı - Referans 4669270

Daire Paris 6èmeDaire Paris 6èmeDaire Paris 6ème
münhasırlık

Paris 6ème, Notre-Dame-des-Champs
  • 1 Yatak odası
  • 38 m²
  • 1
828 371 $ - Referans 86443972

Daire Paris 6èmeDaire Paris 6èmeDaire Paris 6ème
Tarafından satıldı Barnes Türkiye

Paris 6ème
  • 1 Yatak odası
  • 50 m²
  • 1
Satıldı - Referans 83437612

Daire Paris 6èmeDaire Paris 6èmeDaire Paris 6ème
Tarafından satıldı Barnes Türkiye

Paris 6ème
  • 2 yatak odaları
  • 47 m²
  • 1
Satıldı - Referans 3845787

Daire Paris 6èmeDaire Paris 6èmeDaire Paris 6ème

Paris 6ème
  • 2 yatak odaları
  • 71 m²
  • 1
1 138 265 $ - Referans 4027124

BARNES Haber Bülteni

Türkiye'deki ve uluslararası lüks emlak haberlerinden haberdar olmak için bültenimize abone olun.