Barnes Türkiye
Paris 17ème - münhasırlık

Daire Paris 17ème

  • 93 m²
  • 1
  • 2
Satıldı
İletişim
Referans : 83289802
Acente ücretleri satıcı tarafından ödenir.
Ücretleri görüntüle
Bu ilanı paylaş

Paris 17ème, 2 yatak odaları - 93 m² satılık Daire

Özellikler

  • FİYAT
    Satıldı
  • Tip
    Daire
  • Yerellik
    Paris 17ème
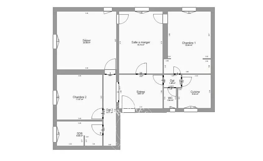
  • Alan
    93 m²
  • Odalar
    4
  • Yatak odaları
    2
  • Zemin
    1
  • Kat sayısı
    3
  • DPE
    274 (E)
  • GES
    48 (E)

Mülkün tanımı

Near Avenue des Ternes, sheltered from prying eyes, on the first floor of a late 19th-century building, a charming 2-bedroom apartment in very good condition in a very well-maintained condominium on a private street in one of the most exclusive locations in the 17th arrondissement.

This pretty 93m² (1,001 sq ft) dual-aspect apartment features a lovely, bright living room facing south/west leading to a small private garden, a dining room, a separate fully equipped kitchen, a master suite, a second bedroom (potential third bedroom), a bathroom and separate toilet. The apartment has plenty of storage space and the layout is perfectly optimised.

Cellar also included. Agency fees payable by vendor - Montant moyen de la quote-part de charges courantes 5,952 €/yearly


Olanaklar

Banyo / WC
Banyo / WC
Giriş
Giriş
Koridor
Koridor
Mutfak
Mutfak
Salon
Salon
WC
WC
Yatak odalari
Yatak odalari
Yemek odası
Yemek odası
Çift cam
Çift cam
Dijtal Kod
Dijtal Kod
Fiberoptik
Fiberoptik
Internet
Internet
Kapici
Kapici

Manzara görünümü

Bahçe
Bahçe
Daire Paris 17ème - picture2 1
Daire Paris 17ème - picture2 2
Daire Paris 17ème - picture2 3
Daire Paris 17ème - picture2 4
Daire Paris 17ème - picture2 5

Mülkün konumu

Barnes Türkiye

Levent, Krizantem Sk. No:64

Beşiktaş/İstanbul, 34330

+90 506 581 22 42
Detaylı bilgi için bize ulaşın

Toplanan bilgiler, Barnes Türkiye'ın talebinizi işleme koyması için gereklidir. Sizinle ilgili kişisel bilgilere her zaman erişme, bunları düzeltme ve silme hakkına sahipsiniz.

This site is protected by reCAPTCHA and the Google Privacy Policy and Terms of Service apply.

Bölgedeki mülkler

Daire Paris 17èmeDaire Paris 17èmeDaire Paris 17ème
Tarafından satıldı Barnes Türkiye

Paris 17ème
  • 2 yatak odaları
  • 83 m²
  • 1
Satıldı - Referans 82359477

Daire Paris 17èmeDaire Paris 17èmeDaire Paris 17ème

Paris 17ème, Ternes
  • 1 Yatak odası
  • 77 m²
  • 1
931 661 $ - Referans 86218848

Daire Paris 17èmeDaire Paris 17èmeDaire Paris 17ème
münhasırlık

Paris 17ème, Ternes
  • 2 yatak odaları
  • 60 m²
  • 1
761 735 $ - Referans 86280048

Daire Paris 17èmeDaire Paris 17èmeDaire Paris 17ème

Paris 17ème, Ternes
  • 2 yatak odaları
  • 58 m²
  • 1
878 925 $ - Referans 86419790

Daire Paris 17èmeDaire Paris 17èmeDaire Paris 17ème
Tarafından satıldı Barnes Türkiye

Paris 17ème, Ternes
  • 2 yatak odaları
  • 74 m²
  • 1
Satıldı - Referans 85161239

Daire Levallois-PerretDaire Levallois-PerretDaire Levallois-Perret
Tarafından satıldı Barnes Türkiye

Levallois-Perret
  • 1 Yatak odası
  • 66 m²
  • 1
Satıldı - Referans 7745290

BARNES Haber Bülteni

Türkiye'deki ve uluslararası lüks emlak haberlerinden haberdar olmak için bültenimize abone olun.