Barnes Türkiye
Grasse

Ev Grasse

  • 370 m²
  • 5
1 280 950 $
İletişim
Referans : APM-7331684
Acente ücretleri satıcı tarafından ödenir.
Ücretleri görüntüle
Bu ilanı paylaş

Grasse, 5 yatak odaları - 370 m² satılık Ev

Özellikler

  • FİYAT
    1 280 950 $
  • Tip
    Ev
  • Yerellik
    Grasse
  • Alan
    370 m²
  • Odalar
    8
  • Yatak odaları
    5
  • DPE
    120 (C)
  • GES
    31 (D)

Mülkün tanımı

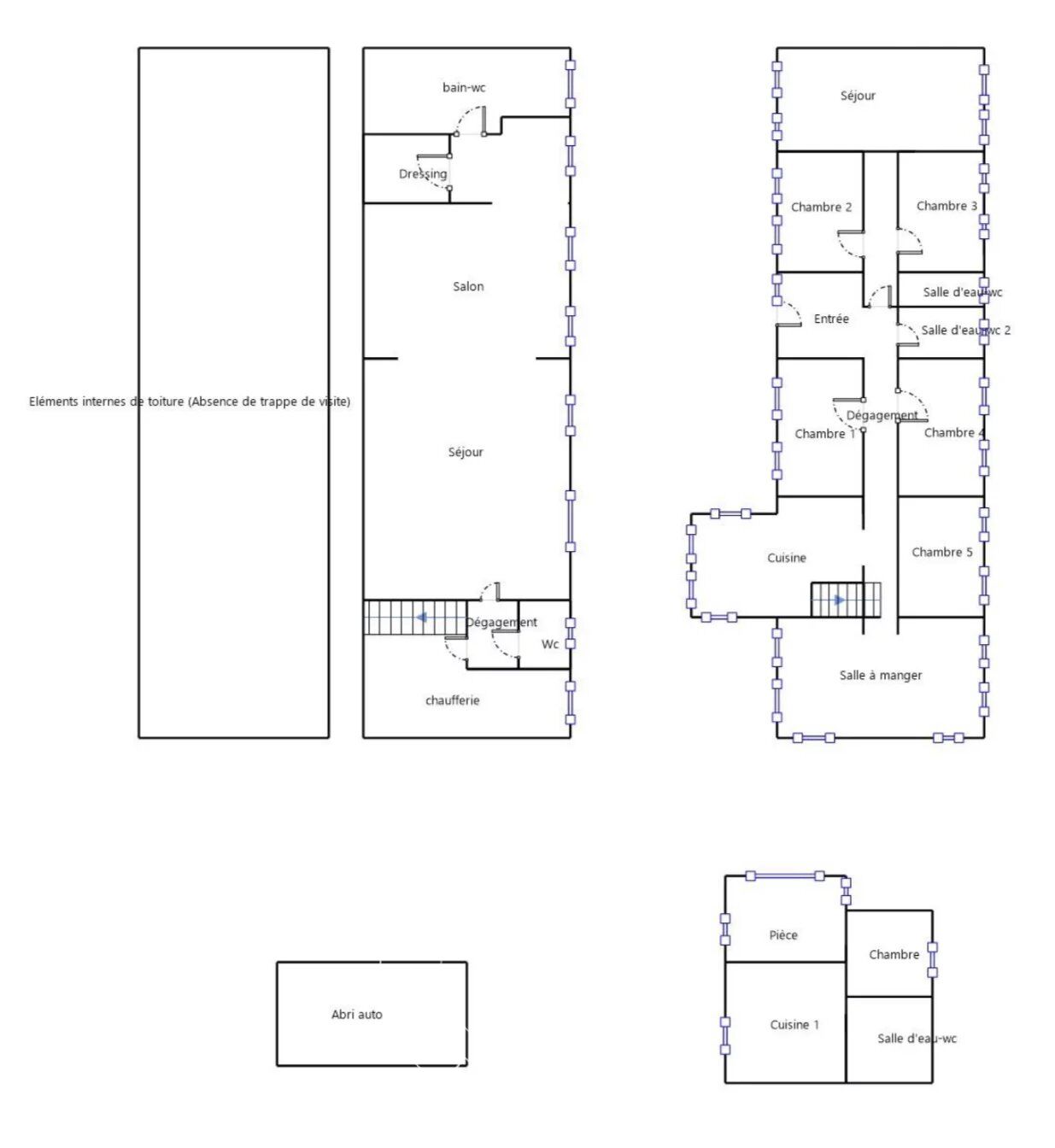
Perched in a dominant position, this superb 373m² bastide combines charm, space, and potential. It offers an ideal living environment for a large family, a guesthouse project, or a space dedicated to a liberal profession.

The current upper floor includes five bedrooms, two bathrooms, a living room, a dining room, and a spacious kitchen. The ground floor features a large versatile room and a bathroom.

This home offers incredible transformation potential: the upper floor could be redesigned to accommodate several additional bedrooms with en-suite bathrooms, as well as a leisure area. The lower floor could be converted into a vast living space with an open kitchen, a living room, and a master suite, opening directly onto the terrace and barbecue area—creating an ideal setting for entertaining and enjoying the outdoors.

An independent guest house, including a kitchen, a living room, a bedroom, and a bathroom, completes this property.

Outside, the 2500m² terraced gardens, swimming pool, and open views create a delightful setting. A carport and multiple parking spaces add to the appeal of this exceptional property.

Energy & Climat class : D / estimated annual cost for a standard use between €3,330 and €4,590 (year of reference : 2021)

Information on the risks to which this property is exposed is available on the Geohazards website : www.georisques.gouv.fr
Property located in an area subject to compulsory brush clearance.


Olanaklar

Açık otopark
Açık otopark
Barbekü
Barbekü
Çift cam
Çift cam
Dış Aydınlatma
Dış Aydınlatma
Elektrik geçidi
Elektrik geçidi
Interkom
Interkom
Klima
Klima
Şömine
Şömine
Yüzme havuzu
Yüzme havuzu
Ev Grasse - picture2 1
Ev Grasse - picture2 2
Ev Grasse - picture2 3
Ev Grasse - picture2 4
Ev Grasse - picture2 5

Mülkün konumu

Barnes Türkiye

Levent, Krizantem Sk. No:64

Beşiktaş/İstanbul, 34330

+90 506 581 22 42
Detaylı bilgi için bize ulaşın

Toplanan bilgiler, Barnes Türkiye'ın talebinizi işleme koyması için gereklidir. Sizinle ilgili kişisel bilgilere her zaman erişme, bunları düzeltme ve silme hakkına sahipsiniz.

This site is protected by reCAPTCHA and the Google Privacy Policy and Terms of Service apply.

Bölgedeki mülkler

Ev GrasseEv GrasseEv Grasse

Grasse
  • 5 yatak odaları
  • 370 m²
  • 6
1 280 950 $ - Referans 7331684

Villa GrasseVilla GrasseVilla Grasse
münhasırlık

Grasse, Saint-Jacques
  • 4 yatak odaları
  • 200 m²
1 007 293 $ - Referans APM-86290496

Ev GrasseEv GrasseEv Grasse
münhasırlık

Grasse
  • 5 yatak odaları
  • 319 m²
  • 2
1 886 490 $ - Referans APM-83063630

Villa PeymeinadeVilla PeymeinadeVilla Peymeinade

Peymeinade
  • 6 yatak odaları
  • 260 m²
  • 2
1 292 595 $ - Referans APM-86359252

Villa PeymeinadeVilla PeymeinadeVilla Peymeinade

Peymeinade
  • 6 yatak odaları
  • 260 m²
  • 5
1 292 595 $ - Referans 86359252

Villa GrasseVilla GrasseVilla Grasse
Tarafından satıldı Barnes Türkiye

Grasse
  • 5 yatak odaları
  • 241 m²
Satıldı - Referans APM-85244742

BARNES Haber Bülteni

Türkiye'deki ve uluslararası lüks emlak haberlerinden haberdar olmak için bültenimize abone olun.